Oceana Bucerias
Quality and Lifestyle
Situated at the most elevated point in the heart of the desirable Zona Dorada, just two blocks to the long sandy beach of Bucerias, OCEANA BUCERIAS is in advanced stages of construction. It’s sloped terrain lends to a terraced placement of two handsome buildings, providing for varied bay, “pueblo” and mountain views with all the facets of the neighbourhood visible from deep, relaxing terraces.
This collection of 51 condominiums is a complete residential experience with the best value-added features and amenities, where owners have access to all elements of the Bucerias and Riviera Nayarit lifestyle—day and night—within footsteps of popular cafes, restaurants, boutiques and galleries.
Features & Amenities
High Standards and Modern Amenities
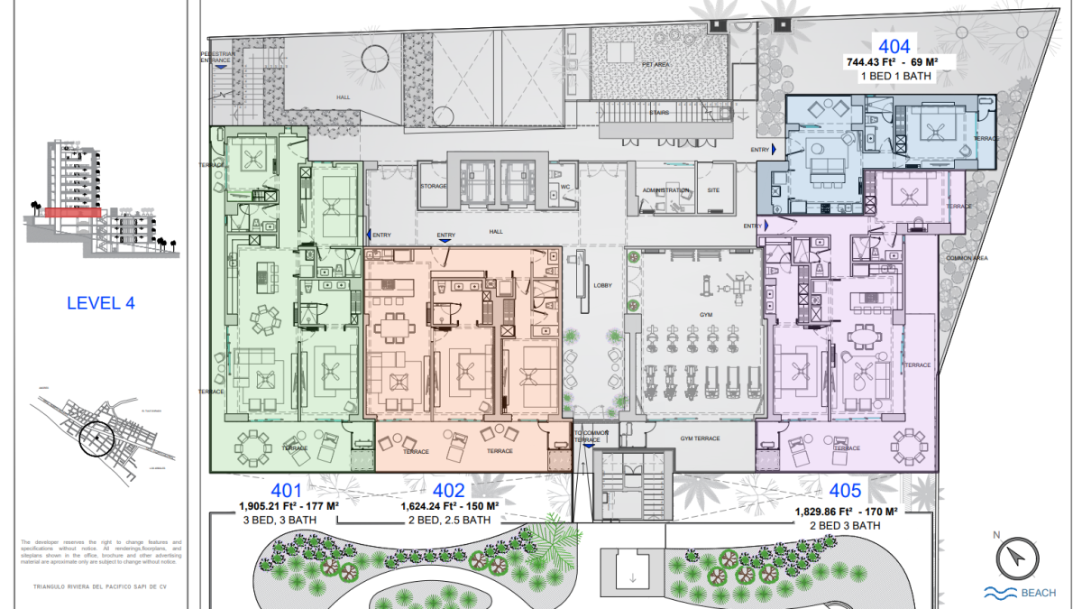
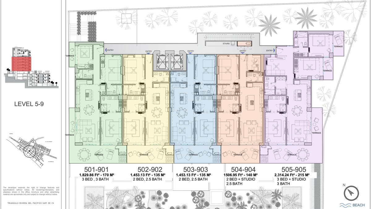
OCEANA BUCERIAS answers to the living trends of the zone, providing a variety of two and three-bedroom floor plans—some with an added flex room, and all with two-and-a-half or three bathrooms. Three elevators and two lobbies provide easy, level access to each unit.
The developer continues with the use of solid walls in every inch of the condo—using premium, innovative Hebel cellular block. Each thoughtfully planned condo is detailed with high-grade finishes of European PVC window systems, porcelain flooring, granite, marble, luxurious bathroom and kitchen fittings, tropical wood carpentry and many other details. Superior architectural detailing, velvet-smooth walls, indirect lighting, tropical hardwood, natural stone, trusted brand fixtures, accessories and appliances provide aesthetics, style and comfort.
This is the canvas to personalize your home with the resources of art and design that abound in the community
The pinnacle of its amenities is the xx-metre roof top pool, where all owners will have exclusivity to 180-degree views of Banderas Bay and over 6,000-square feet of luxurious recreation space. A second rooftop area will provide a quiet oasis of lounge spaces. A fully equipped workout room, full-building filtration system and one underground parking spot for most units add convenience and value.
February 2023
March 2023
May 2023
June 2023
July 2023
August 2023
September 2023
November 2023
December 2023
February 2024
March 2024
April 2024
June 2024
July 2024
August 2024
September 2024
October 2024
November 2024
December 2024
January 2025
February 2025
April 2025
May 2025
June 2025
July 2025
August 2025
September 2025
October 2025
Developer
The super-trio behind PACIFICA BUCERIAS is comprised of entrepreneur Eduardo Meza Peña and architect Manuel Morales Monroy, associates of Mesa Moral, and Juan Pablo Stone, co-owner of Stone Contractors. Deeply rooted and highly respected, they’ve collectively forged an impressive building footprint on the Puerto Vallarta-Riviera Nayarit corridor over the last 20 years. Meza and Morales have completed more than a hundred and fifty residences of late in the Zona Romántica and Mismaloya including: The Reef, Oceana Vallarta, Pacifica Vallarta, The Park and Amapas 353. Stone’s company is the area’s undisputed leader in luxury residential construction with iconic residences all along the Costa Vallarta. Stone joined forces with them in 2018 to create Triangulo Riviera del Pacifico, which has focussed on the North Shore and the group has now built INDIGO Bucerias and PACIFICA Bucerias. OCEANA Bucerias is the next evolution of their creative, intellectual and engineering force.
Local Scene
Just two blocks from one of the best beach accesses of the Zona Dorada and one block from popular Lazaro Cardenas street, this is your doorstep to kite surfing, stand-up paddling, beach combing, sun worshipping, yoga and dance. Fabulous cuisine from best tacos to fine dining dominates the district. Passionate artists and humble craftspeople are found anywhere from the beach to lovely galleries. The popular Zona Dorada is where just about any kind of personal interest is easily fulfilled.
Unit Locator


Contact
"*" indicates required fields
Victoria L. Pratt
Office: +52 329 298 1860
USA / Canada: 310 356 6514
Mobile: +52 322 779 9283
victoria@timothyrealestategroup.com